Preskočite do glavnog sadržaja

Šifra oglasa: ST-1

Kuća u izgradnji, Stubičke Toplice, 108 m2 na zemljištu od 572 m2

Stubičke Toplice, Mlinarska ulica

Posredujemo pri prodaji samostojeće montažne  kuće u izgradnji smještene u Stubičkim Toplicama, na mirnoj i atraktivnoj lokaciji okruženoj prirodom. Zahvaljujući svojoj poziciji i konceptu, nekretnina predstavlja odličan izbor za obiteljski život, kuću za odmor ili investiciju s potencijalom turističkog najma.

 

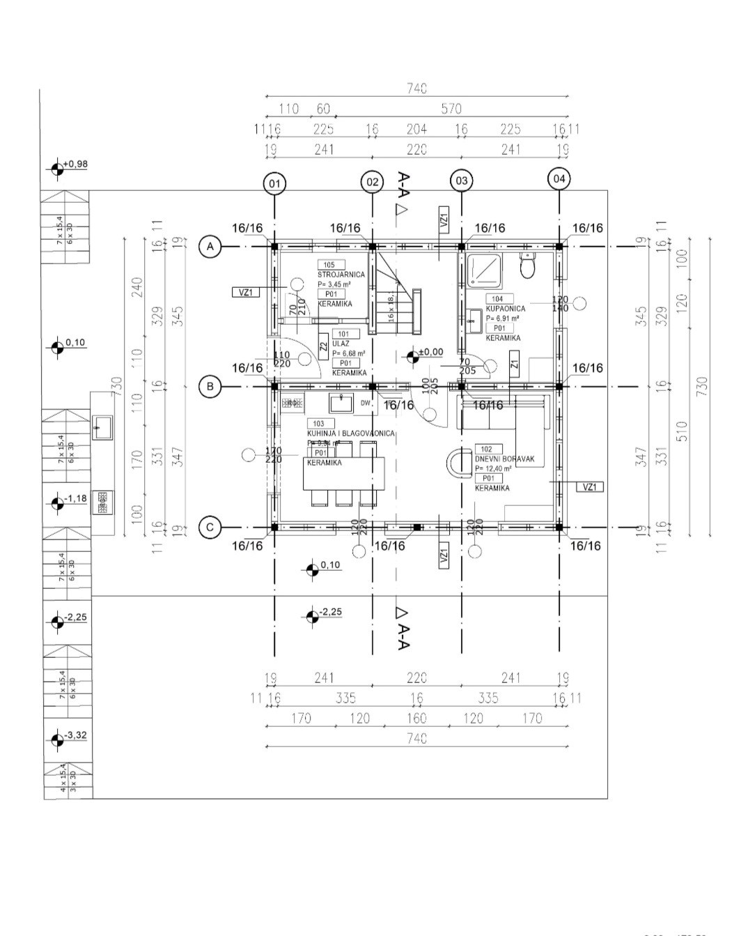
 Kuća je smještena na kosini orijentiranoj prema jugoistoku te obuhvaća 108 m² stambene površine, uz dodatnu pomoćnu građevinu, na zemljištu ukupne površine 572 m². Uz nekretninu dolaze pravomoćna građevinska dozvola i pripadajuća arhitektonska dokumentacija, što budućem vlasniku pruža kvalitetnu osnovu za nastavak radova i planiranje dovršetka projekta.

 

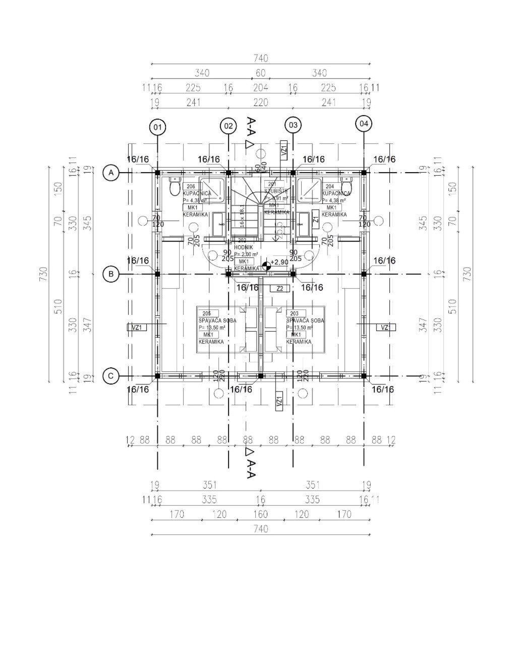
Prostor je organiziran na dvije etaže. U prizemlju su predviđeni ulazni prostor, prostrani dnevni boravak povezan s kuhinjom i blagovaonicom po open space konceptu, kupaona te strojarnica. Na katu se nalaze dvije spavaće sobe, svaka s vlastitom kupaonom, što prostoru daje dodatnu funkcionalnost, komfor i privatnost.

 

Nekretnina je trenutno u izgradnji i  prodaje se u visokoj roh-bau fazi čiji završetak se očekuje krajem svibnja 2026. što omogućuje uređenje i završetak prema vlastitim željama i potrebama. Prema projektu, planirana je A+ energetska učinkovitost, a tijekom gradnje posebna pažnja usmjerena je na drenažni sustav terena i same kuće.

 

Smještena u poznatom turističkom i wellness području Stubičkih Toplica, uz dobru prometnu povezanost sa Zagrebom, ova nekretnina nudi vrlo dobar omjer lokacije, potencijala i kvalitete projekta.

 

Kupac ne plaća posredničku naknadu u slučaju javljanja i kupnje nekretnine putem ovog oglasa.

 

Za više informacija i dogovor oko razgleda, slobodno se javite.

Ključne informacije

Vrsta ponude:

Prodaja

Namjena nekretnine:

Stambena

Tip nekretnine:

Kuća

Godina izgradnje:

2026.

Mjesto:

Stubičke Toplice

Ulica:

Mlinarska ulica

Površina nekretnine:

108,00 m²

Površina parcele:

572,00 m²

Orijentacija:

Jugoistok

Katnost:

2

Grijanje:

Dizalica topline

Energetski certifikat:

Razred A+

Cijena:

280.000,00 €

Cijena (m²):

2.592,00 €

Cijena:

280.000,00

Prodajna površina

108,00

Kontaktirajte agenta

Zane d.o.o.

Zane d.o.o.

Tel: 01 4860 677

Email: ZANE.posredovanje@zane.hr