Preskočite do glavnog sadržaja

Šifra oglasa: 1-30

Moderan jednosobni stan – Centurion Residences, Umag

Umag, Ulica poduzetnika 16A

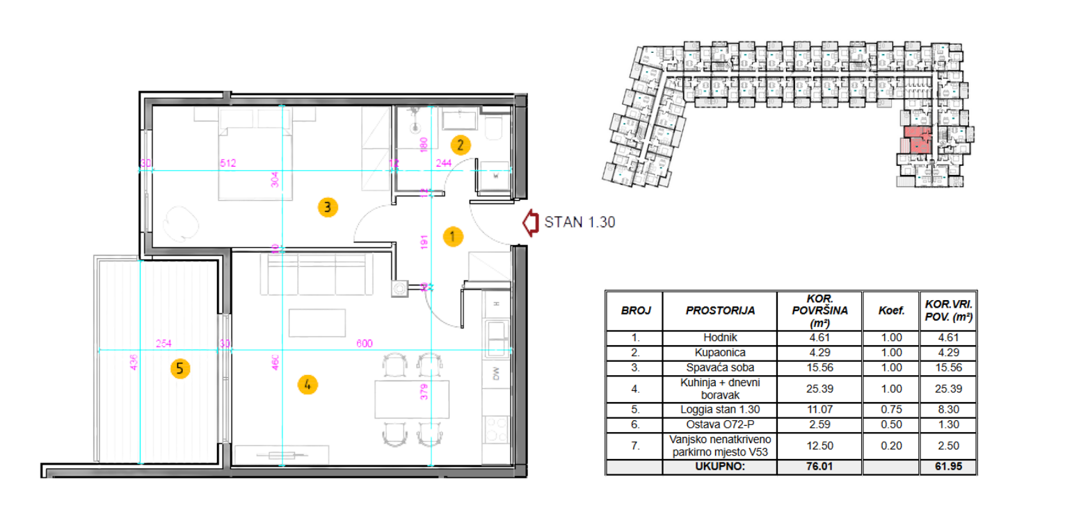
 Jednosobni stan površine 61,95 m² nalazi se na 1. katu luksuzne stambene zgrade Centurion Residences u Umagu.

 

Stan se sastoji od ulaznog hodnika,  dnevnog dijela koji obuhvaća kuhinju, blagovaonicu, dnevnu sobu, spavaće sobe, kupaonice i loggie. 

 

Stanu pripada parkirno mjesto od 12.50 m2 i ostava. 

 

Stan je orijentiran je na zapad.

 

Projekt karakterizira vrhunska gradnja, PVC stolarija s električnim roletama, multisplit klima u svakoj prostoriji i materijali visokog standarda poput velikih formata keramike i parketa.

 

Projekt je idealan kao trajni dom, nekretnina za odmor ili investicija za najam, u obzir uzimajući blizinu centra i mora.

 

Kupac ne plaća posredničku naknadu u slučaju javljanja i kupnje nekretnine putem ovog oglasa.

 

Za sve dodatne informacije, stojimo na raspolaganju.

 

Za nekretninu je izdana važeća uporabna dozvola i moguća je kupnja putem stambenog kredita.

Ključne informacije

Vrsta ponude:

Prodaja

Namjena nekretnine:

Stambena

Tip nekretnine:

Stan - novogradnja

Godina izgradnje:

2025.

Mjesto:

Umag

Ulica:

Ulica poduzetnika 16A

Površina nekretnine:

61,95 m²

Površina spremišta:

2,59 m²

Površina garaže / parkinga:

12,50 m²

Orijentacija:

Zapad

Vanjski prostor:

Loggia

Kat:

1.kat

Katnost:

3

Sobnost:

Jednosobni

Grijanje:

MULTISPLIT SUSTAV GRIJANJA I HLAĐENJA

Energetski certifikat:

Razred A+

Cijena:

217.000,00 €

Cijena (m²):

3.502,82 €

Dodatni sadržaj

dizalo

blizina javnog prijevoza

klima uređaj

protuprovalna vrata

blizina mora

Cijena:

217.000,00

Prodajna površina

61,95

Kontaktirajte agenta

Zane d.o.o.

Zane d.o.o.

Tel: 01 4860 677

Email: ZANE.posredovanje@zane.hr